Maui
6 Bed • 5 Bath • 4 Garage • 2,900 ft2
Plan Type: 1.5 Story
Plan Style: None
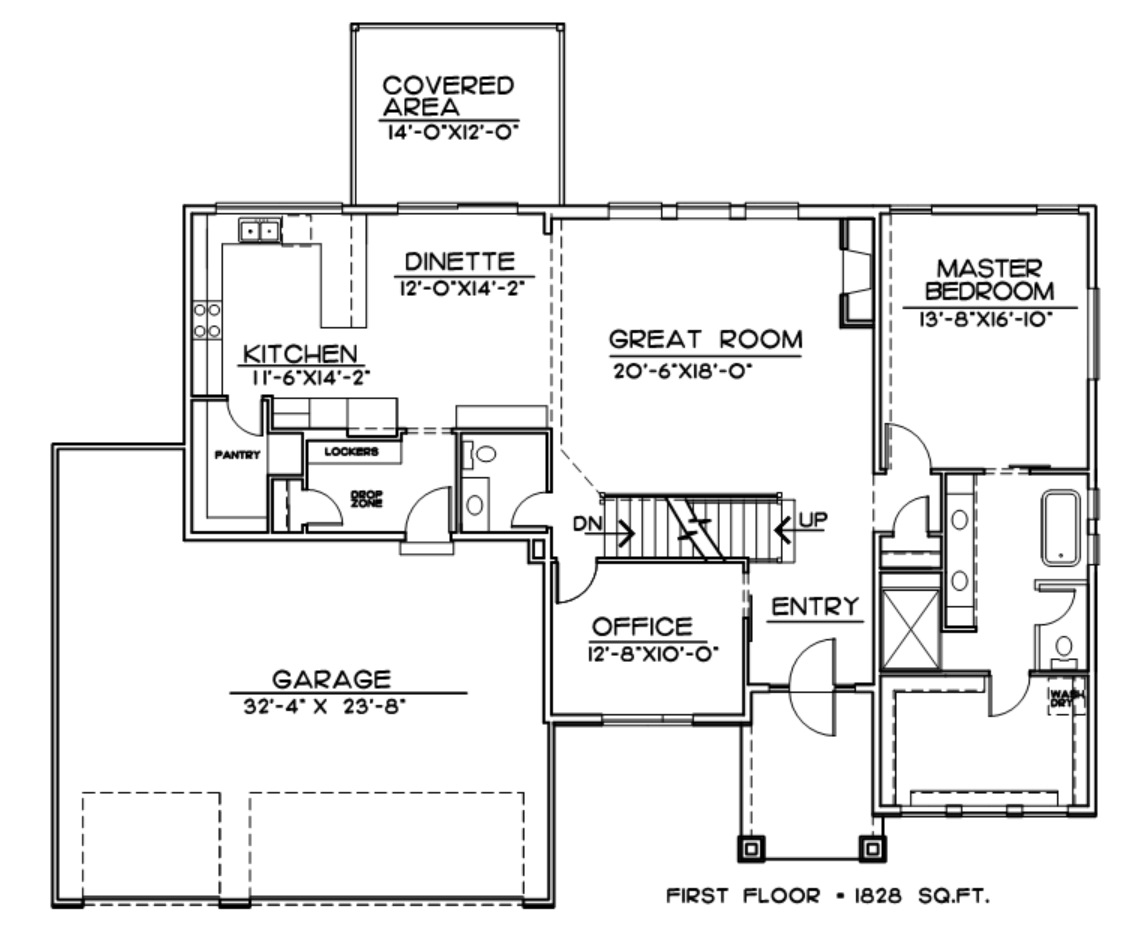
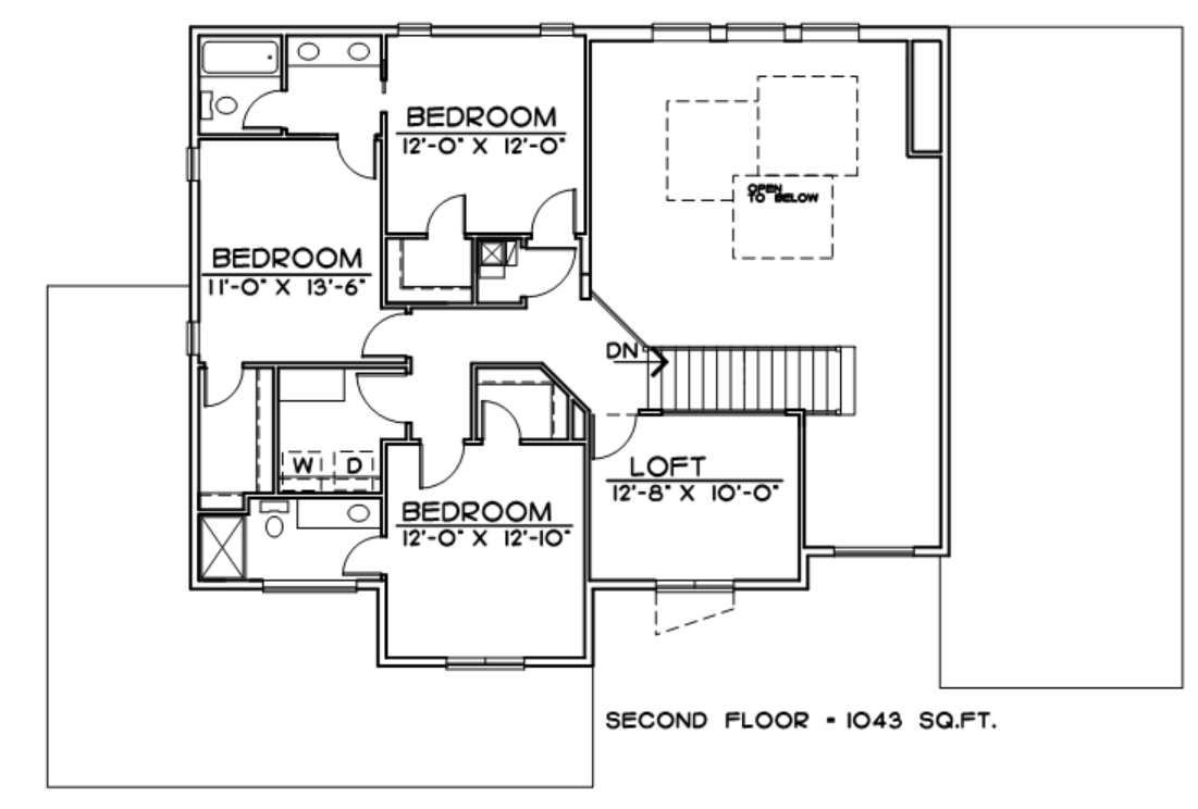
Beautiful slanted roof lines and different colors and materials create an eye-catching exterior for this trendsetting Modern house. Over-sized windows on both the front and back of this modern home provide beautiful views of the surrounding landscape, while offering a light and airy feeling throughout the open interior. The 18 foot vaulted ceilings start in the foyer and extend to the back of the house with two-story ceilings in the living room. Even the outdoor living area is vaulted making it feel larger. The living room is opened to L-shaped kitchen and dining area with a spacious walk-in pantry. Venture up the floating stairs and play games or finish homework in the loft. The second level features 3 additional bedrooms, 2 additional baths, and a second floor laundry room. The main-level, master suite boasts large windows and a sprawling en-suite with two sinks, a freestanding tub and massive two person shower, and a light-filled custom closet. Head downstairs to the finished basement which features a see through fireplace and double-sided TV wall. The built-in bar is a true entertainers dream.








































