Honolulu
4 Bed • 4 Bath • 4 Garage • 4,696 ft2
Plan Type: 2 Story
Plan Style: None
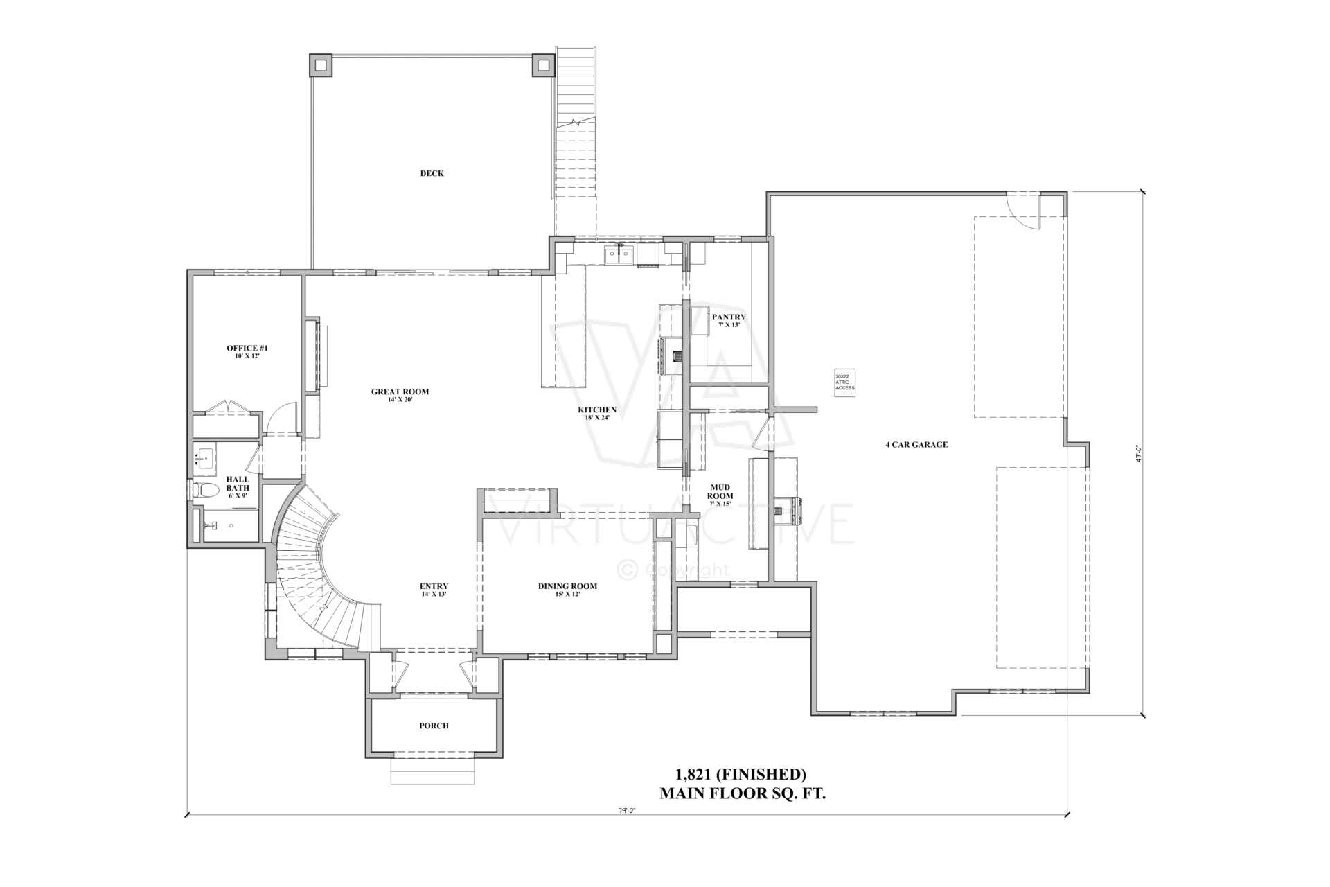
The Honolulu makes an unforgettable first impression with its grand entrance and sweeping curved staircase, setting the tone for a home designed with both drama and intention. The main floor unfolds into a series of beautifully connected spaces, including a formal dining room, a private office, and a conveniently located bathroom. The expansive great room flows seamlessly into the open kitchen, where generous workspace and a walk‑in pantry support both daily routines and effortless entertaining. A well‑organized mudroom completes the main level with practical ease.
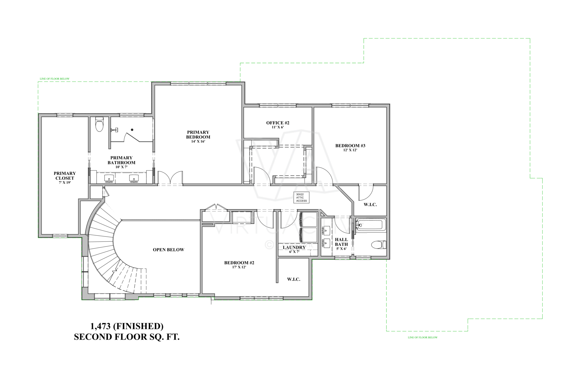
Upstairs, the primary suite becomes a true retreat, featuring a massive walk‑in closet and a spacious, spa‑inspired bath. A dedicated library offers a quiet escape for reading or study, while a second office provides additional workspace or creative flexibility. Two additional bedrooms share a well‑appointed bathroom, and a conveniently located laundry room enhances everyday functionality.
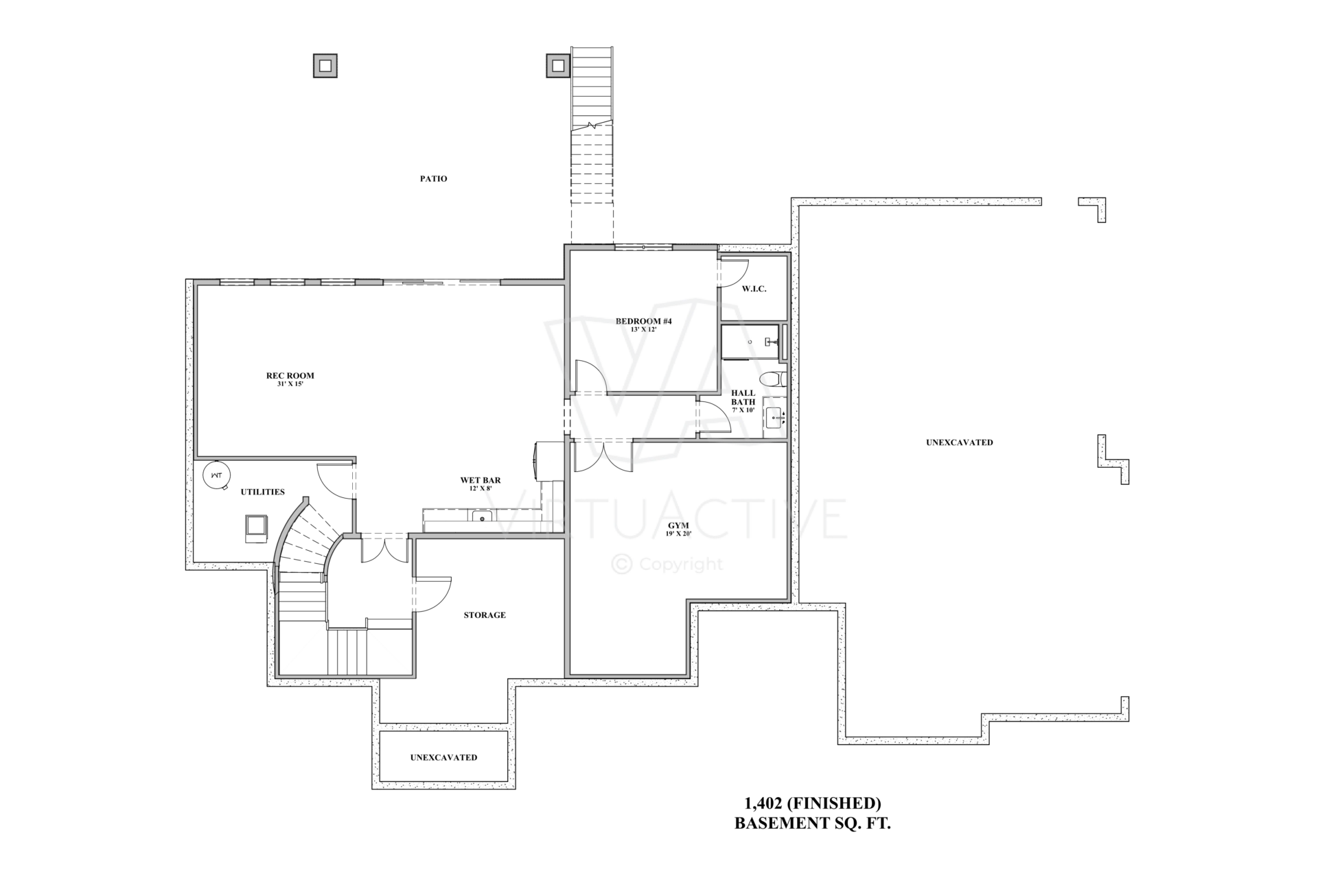
The finished lower level transforms into a full entertainment and wellness destination. A massive rec room anchors the space, complemented by a stylish wet bar perfect for hosting. A dedicated gym, an additional bedroom, and a full bathroom make this level as versatile as it is impressive.
With its grand architectural moments, thoughtful layout, and a blend of luxury and livability, The Honolulu delivers a two‑story living experience that feels both elevated and effortlessly functional on every level.























