Santa Maria
5 Bed • 6 Bath • 4 Garage • 4,390 ft2
Plan Type: 1.5 Story
Plan Style: None
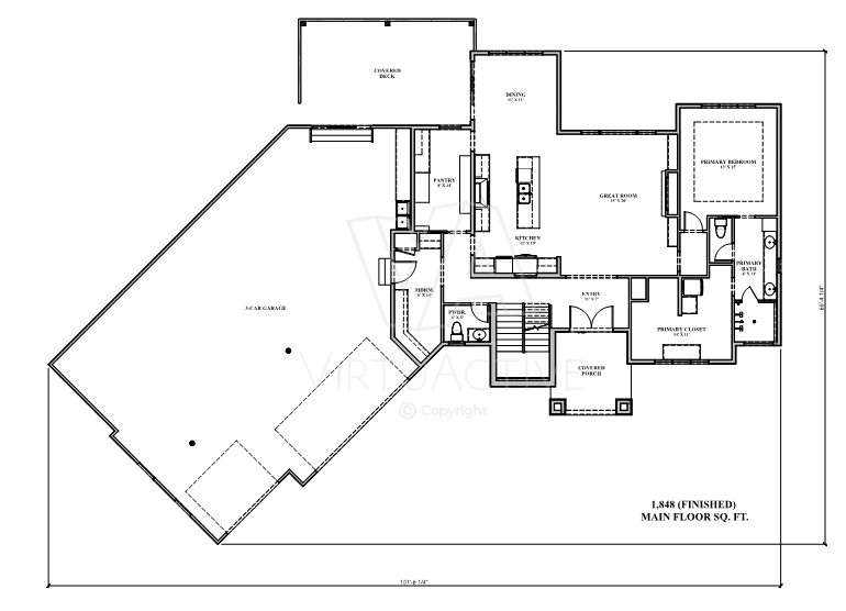
The Havencrest is where timeless architecture meets modern livability. Thoughtfully designed as a 1.5‑story home, this plan blends open‑concept gathering spaces with private retreats, creating a layout that adapts beautifully to the rhythm of everyday life.
A soaring entry sets the tone, leading into a light‑filled great room anchored by expansive windows and a statement fireplace. The kitchen is crafted for both function and connection, offering generous workspace, a true butler’s pantry, and seamless flow to the dining area and outdoor living.
The main‑level primary suite is a true sanctuary, featuring a spacious bedroom, spa‑inspired bath, and a walk‑through closet with its own washer and dryer for everyday convenience.
Upstairs, three additional bedrooms and two bathrooms are paired with a lofted living area that creates a second zone for relaxation, play, or study. This level also includes its own dedicated washer and dryer, adding practicality and ease to busy family routines.
The finished basement extends the home’s livability with its own wet bar, expansive rec room, and an additional bedroom and bathroom — perfect for hosting, hobbies, or game‑day gatherings.
The Havencrest is more than a floor plan. It’s a home that grows with you, welcomes your people, and reflects the way modern families live today.
























