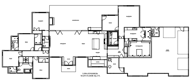
Grenada
5 Bed • 5 Bath • 4 Garage • 3,550 ft2
Plan Type: Ranch
Plan Style: Ranch
The Havana delivers nearly 3,600 sq ft of refined single‑level living, blending bold modern design with warm, livable comfort. The great room stands at the center of the home with expansive, light‑filled, and crafted for both relaxed evenings and elevated entertaining.
The kitchen and dining areas extend seamlessly from the main living space, offering generous workspace, sleek finishes, and a layout designed to host with ease. With five bedrooms and five baths, the home provides exceptional flexibility for family, guests, or multigenerational living.
The primary suite is privately positioned, offering a calm retreat with a spa‑inspired bath and a spacious closet. Each additional bedroom enjoys its own bath access, ensuring comfort and privacy throughout.
Thoughtful transitions, abundant storage, and a clean, modern aesthetic make The Havana feel both luxurious and effortlessly functional, perfect for those who want high‑end design in a timeless single‑story form.
































