Fiji
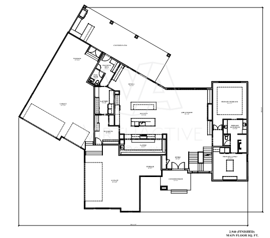
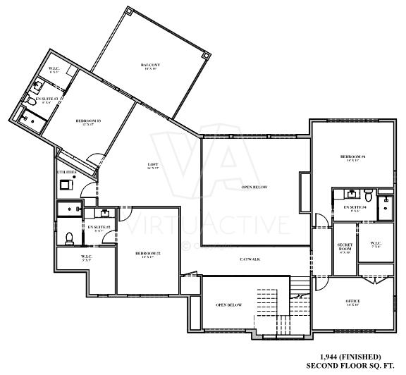
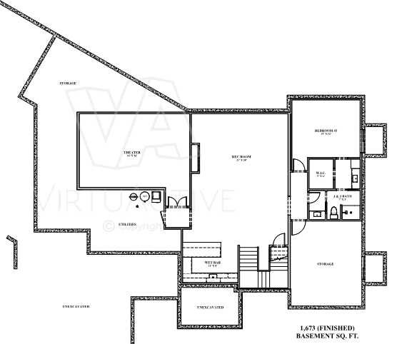
6 Bed • 6 Bath • 4 Garage • 6,560 ft2
Plan Type: 1.5 Story
Plan Style: None
The Fiji makes an immediate impact with its soaring volume, clean lines, and light‑filled design. The great room sets the tone with it's expansive, dramatic, and seamlessly connected to the heart of the home.
The kitchen becomes a true architectural moment, defined by two striking statement islands that elevate both function and visual presence. Paired with refined finishes and a fluid connection to the dining area, this space is crafted for unforgettable gatherings and elevated everyday living.
The main‑level primary suite offers a quiet, restorative escape with a thoughtfully arranged bath and a spacious closet. Upstairs, the half‑story adds a versatile retreat perfect for guests, work, or a private lounge.
Modern, luminous, and intentionally designed, The Fiji delivers a bold yet effortless luxury experience in a timeless 1.5‑story form.






























































