Grand Turk
4 Bed • 5 Bath • 4 Garage • 3,400 ft2
Plan Type: 1.5 Story
Plan Style: None
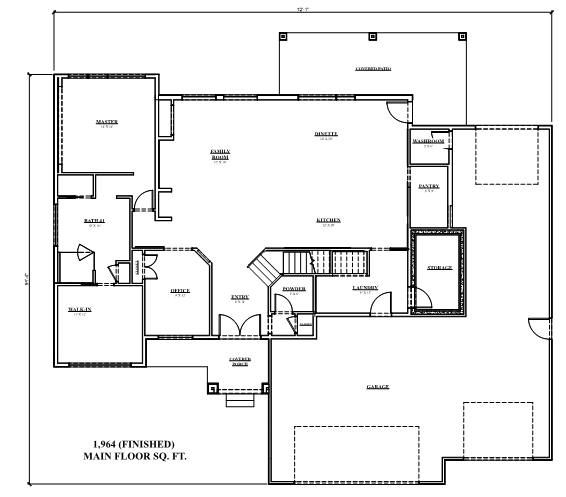
The Grand Turk redefines contemporary living with a 1.5‑story layout that feels both architecturally striking and effortlessly functional. From the moment you enter, the soaring foyer and open staircase create a dramatic sense of arrival, guiding you into a great room wrapped in natural light. Floor‑to‑ceiling windows, refined finishes, and clean modern lines set the tone for a home designed to impress.
At the center of the main level, the expansive living, dining, and kitchen spaces flow together with an ease that elevates both everyday moments and unforgettable gatherings. The chef’s kitchen features a statement island, sleek cabinetry, and a walk‑in pantry that blends beauty with purpose. Every detail is intentional, creating a space that feels as luxurious as it is livable.
The main‑floor primary suite is a private sanctuary that is thoughtfully tucked away and finished with spa‑level sophistication. A walk‑in shower, elegant fixtures, and a generous dressing closet complete the retreat.
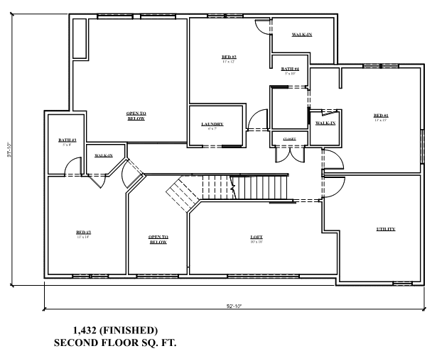
Upstairs, the Grand Turk continues its elevated experience with additional bedrooms, a full bath, and a lofted lounge overlooking the heart of the home. It’s the perfect space for relaxation, creativity, or connection.
With its bold architectural presence, sun‑filled interiors, and a layout crafted for modern lifestyles, the Grand Turk delivers a rare blend of luxury, comfort, and contemporary elegance.





















































