Barcelona
5 Bed • 5 Bath • 4 Garage • 5,640 ft2
Plan Type: 1.5 Story
Plan Style: None
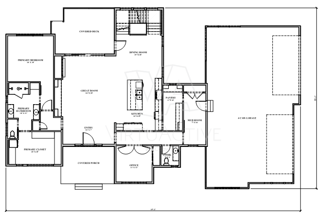
The Barcelona brings together bold modern style and a layout crafted for the way people truly live. The main floor centers around a spacious great room and an open, inviting kitchen—an ideal setting for both everyday routines and memorable gatherings. A privately positioned primary suite offers a serene retreat, while a dedicated office, convenient mudroom, and stylish powder bath complete the main‑level experience with purpose and polish.
Upstairs, three generously sized bedrooms with walk‑in closets. Two well‑appointed bathrooms, a dedicated laundry room, and a bright loft create a highly functional upper level that supports both busy mornings and relaxed evenings.
The finished lower level transforms into a true entertainment hub. A large rec room with a sleek bar sets the stage for hosting, while a hidden secret game room adds a playful, unexpected twist. An exercise room, an additional bedroom, and a full bathroom make this level as versatile as it is inviting.
With its intentional design, generous living spaces, and a blend of luxury and livability, The Barcelona delivers a 1.5‑story lifestyle that feels elevated, flexible, and beautifully connected on every level.



























